Sea Breeze Monaco Residence logo
Sea Breeze Monaco Residence tikinti şirkətinə məxsus yaşayış kompleksi
  • Sahə (m²)
  • Qiymət
  • Təhvil tarixi
  • 61.2 - 128.5
  • 239300 AZN-dən
  • 2029 dekabr
Bakı şəhəri, Sabunçu r., Nardaran qəs., Sea Breeze
Parametrlər
Təhvil tarixi2029 dekabr
Korpus sayı6
Mənzil sayı734
Binada mərtəbələr17-27
Bütün parametrlər
Ümumi məlumat
Davamını oxu
Monaco Residence — Xəzər dənizi sahilindən cəmi bir neçə dəqiqəlik məsafədə yerləşən və Halfmoon-a panoramik mənzərəsi olan, prestij, rahatlıq və Sea Breeze kurort həyat tərzini bir araya gətirən müasir premium yaşayış kompleksidir.
Sea Breeze Monaco Residence
Yaşayış kompleksi
Sea Breeze Monaco Residence logo
(012) 311-02-●●Zəng etseabreeze.az
Planlar
2 otaq - 61.2 m²
239 292 AZN-dən
3 910 AZN/m²-dən
Təmir: TəmirsizEyvan: 1Sanitar qovşaq: 1
Sea Breeze Monaco Residence yaşayış kompleksi, mənzilin planı - 2-otaqlı, 61.2 m²
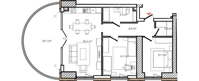
3 otaq - 114.3 m²
456 629 AZN-dən
3 995 AZN/m²-dən
Təmir: TəmirsizEyvan: 1Sanitar qovşaq: 1
Sea Breeze Monaco Residence yaşayış kompleksi, mənzilin planı - 3-otaqlı, 114.3 m²
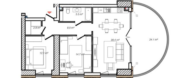
3 otaq - 114.3 m²
417 767 AZN-dən
3 655 AZN/m²-dən
Təmir: TəmirsizEyvan: 1Sanitar qovşaq: 1
Sea Breeze Monaco Residence yaşayış kompleksi, mənzilin planı - 3-otaqlı, 114.3 m²
3 otaq - 128.5 m²
513 358 AZN-dən
3 995 AZN/m²-dən
Təmir: TəmirsizEyvan: 1Sanitar qovşaq: 2
Sea Breeze Monaco Residence yaşayış kompleksi, mənzilin planı - 3-otaqlı, 128.5 m²
Daha çoxuna bax
Sea Breeze Monaco Residence YK üzrə elanlar
Elan sayı: 5